Wentholtstraat 86 Te koop

Bouwjaar 1966
Woonoppervlakte 84 m²
Aantal kamers 4
Perceeloppervlakte 17 m²

Omschrijving Wentholtstraat 86

Netjes onderhouden hoekwoning, in een rustige straat met ruime oprit en veel garageruimte. Op een rustige en fijne plek in Ommen staat deze verzorgde hoekwoning met garage. Een nette, comfortabele woning op een toplocatie: je loopt in 10 minuten naar het gezellige centrum van Ommen, of je pakt de fiets en bent er binnen 5 minuten. Alles binnen handbereik! Nieuwsgierig geworden? Bel gerust voor een bezichtiging: 0529 - 451032. We laten je de woning graag zien!

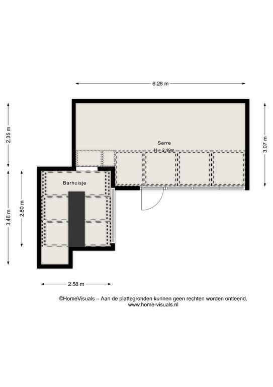
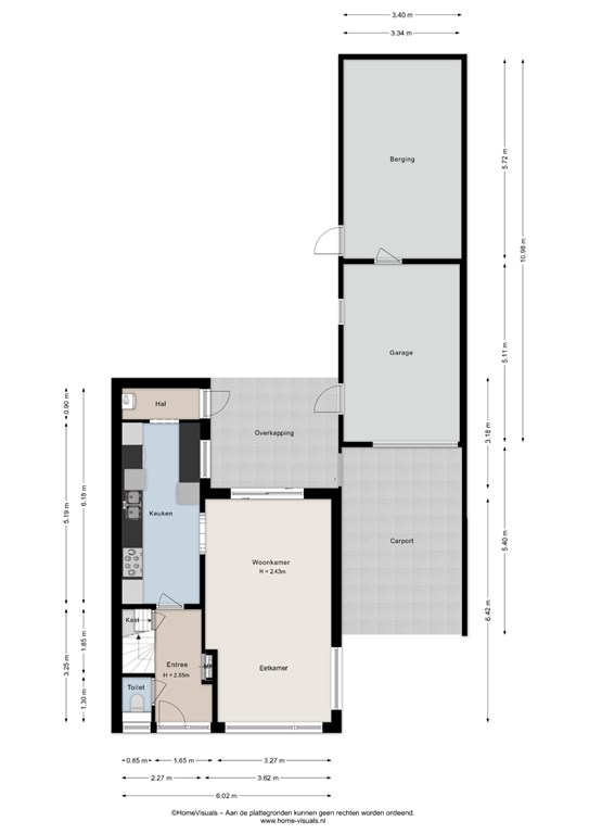
Begane grond

Entree met meterkast, toilet en trapopgang. De woonkamer met eetkamer bevindt zich aan de voorzijde en staat in verbinding met de keuken aan de achterzijde. Vanuit de keuken is een hal bereikbaar. Aangrenzend bevindt zich de overkapping met toegang tot de garage en berging.

Eerste verdieping

Overloop met toegang tot drie slaapkamers en de badkamer, voorzien van inloopdouche en een dubbele wastafel.

Bijzonderheden

- Remeha cv-installatie van 2023 (huur) - Keuken voorzien van gasfornuis met oven, koelkast, vaatwasser, combi-magnetron. - Slaapkamers met vaste kasten - Ruime garage en schuur - Ruime eigen oprit. Woonoppervlakte: 84m2 Perceeloppervlakte: 275m2 Inhoud: 296m3

Lees meer
Lees minder

Kenmerken

Overdracht
Vraagprijs €375.000 k.k.
Status Beschikbaar
Aanvaarding In overleg
Bouw
Soort woonhuis Hoekwoning, Eengezinswoning
Soort bouw Bestaande bouw
Bouwjaar 1966
Soort dak Zadeldak bedekt met Bitunineuzedakbeddekking
26
Oppervlakten en inhoud
Gebruiksoppervlakten
Wonen 84 m²
Externe bergruimte
Perceel275 m²
Inhoud 296 m²
Indeling
Aantal kamers 4 kamers (3 slaapkamers)
Aantal badkamers 1 badkamer(s)
Aantal woonlagen 2 woonlagen
Voorzieningen
Energie
Energielabel C
Isolatie Dakisolatie, Muurisolatie, Spouwmuur
Verwarming Centrale verwarming
Warm water CV ketel
Cv-ketel Remeha HR

Op zoek naar een makelaar?

Ruben Fokke Ad Fokke

contact

Vul het contactformulier in.

We nemen binnen een dag contact met je op.