Jan Houtmanstraat 10 Te koop

Bouwjaar 2020
Woonoppervlakte 154 m²
Aantal kamers 4
Perceeloppervlakte 15 m²

Omschrijving Jan Houtmanstraat 10

OPEN HUIZEN DAG! Zaterdag 28 maart 2026 van 11:00 tot 15:00 uur Wonen in hartje centrum van Ommen! Deze super strak afgewerkte 'stadsvilla' van 154 m² woonoppervlak is van alle gemakken voorzien en kan van jou worden. Het betreft hier de gehele woning. Vanuit dit huis loop je zo de stad in, heerlijk winkelen of even het terras op voor een natje en een droogje. De Overijsselse Vecht is om de hoek. Je kunt heerlijk wandelen door de mooie mooie natuur. De gehele woning is volledig gasloos, energie neutraal met een hogere energie-opwekking en uitgerust met een duurzame aardwarmtepomp in combinatie met 18 st. zonnepanelen, wat resulteert in een uiterst energiezuinig verbruik en een energielabel A+++. Daarnaast is de woning voorbereid op toekomstbestendig wonen: bij de bouw (2020) is rekening gehouden met de mogelijkheid tot het plaatsen van een lift, waardoor de woning eenvoudig levensloopbestendig kan worden gemaakt. Benieuwd naar deze woning? Bel of app gerust voor een bezichtiging.

Begane grond

Comfortabele indeling met veelzijdige ruimtes De woning is zowel aan de voor- als achterzijde toegankelijk. Binnenkomst via de entree/hal met onder andere een garderoberuimte, een toilet met fonteintje, de meterkast, een berging, de trap naar de eerste verdieping en directe toegang tot de garage. Via de hal bereikt u een royale slaapkamer, maar die ook als kantoor gebruikt kan worden. Deze kamer is voorzien van een keukenblok en grenst aan een berging/technische ruimte, wat zorgt voor extra gebruiksgemak en flexibiliteit. Bij de woning hoort een gezamenlijk parkeerterrein, dat ruim voldoende parkeergelegenheid biedt voor bewoners.

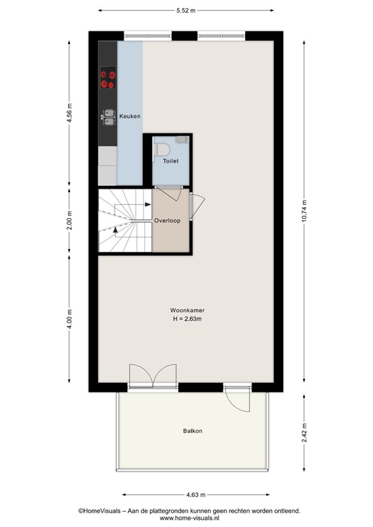
Eerste verdieping

Eerste verdieping met ruim balkon en luxe keuken Via de vaste trap komt u op de overloop, met een tweede toilet voorzien van fonteintje. De lichte woonkamer biedt toegang tot een royaal balkon van circa 2,42 x 4,63 meter, gelegen aan de doorgaande weg – een fijne plek om buiten te zitten en te genieten van de omgeving. De open keuken is modern en compleet uitgerust met een inductiekookplaat, afzuigkap, vaatwasser, koelkast en combimagnetron. Een praktische en stijlvolle ruimte voor iedereen die van koken houdt.

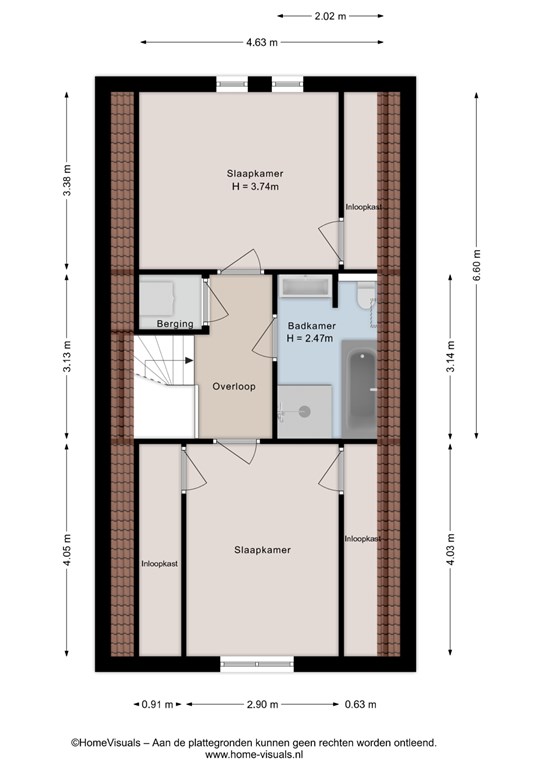
Tweede verdieping

Via de vaste trap komt u op de overloop, met toegang tot een berging met wasmachineaansluiting. Op deze verdieping bevinden zich twee royale slaapkamers, elk voorzien van een eigen inloopkast. De badkamer is netjes afgewerkt en beschikt over een wastafelmeubel, toilet, inloopdouche en een ligbad – een fijne combinatie van comfort en functionaliteit.

Bijzonderheden

- Bouwjaar 2020 - Volledig energie neutraal. - Energieopwekking is hoger dan het verbruik. - Volledig geïsoleerd met een A+++ energielabel. - Alle verdiepingen incl. garage v.v. vloerverwarming - 18 st. zonnepanelen van 370 Wattpiek p/s - Stiebel Eltron aardwarmtepomp voor zowel verwarmen als koelen - Waterontharder is aanwezig - Twee eigen parkeerplekken - Elektrisch laadpunt voor elektrische auto aanwezig Woonoppervlakte: 154 m² Perceeloppervlakte: 148 m² Inpandige garage van ca. 2.95 x 4.93 meter Inhoud: 607 m³

Lees meer
Lees minder

Kenmerken

Overdracht
Vraagprijs €675.000 k.k.
Status Beschikbaar
Aanvaarding In overleg
Bouw
Soort woonhuis Half vrijstaande woning, Eengezinswoning
Soort bouw Bestaande bouw
Bouwjaar 2020
Soort dak Mansardedak bedekt met Pannen
Oppervlakten en inhoud
Gebruiksoppervlakten
Wonen 154 m²
Perceel508 m²
Inhoud 607 m²
Indeling
Aantal kamers 4 kamers (3 slaapkamers)
Aantal badkamers 1 badkamer(s)
Aantal woonlagen 3 woonlagen
Voorzieningen Facility, Facility, Facility
Energie
Energielabel APLUSPLUS
Isolatie Dakisolatie, Muurisolatie, Vloerisolatie, Volledig geïsoleerd, Spouwmuur, Dubbelglas
Verwarming Warmtepomp, GEOTHERMAL

Op zoek naar een makelaar?

Ruben Fokke Ad Fokke

contact

Vul het contactformulier in.

We nemen binnen een dag contact met je op.