Doormanstraat 7 Te koop

Bouwjaar 1961
Woonoppervlakte 98 m²
Aantal kamers 5
Perceeloppervlakte 95 m²

Omschrijving Doormanstraat 7

Een unieke kans om te wonen op een toplocatie! Met een prachtig uitzicht over het Vechtdal ligt hier, aan de rand van Ommen, deze aantrekkelijke twee-onder-een-kapwoning. Met het centrum op loopafstand en een speelveld voor de deur geniet u van het beste van twee werelden: rust, ruimte én de levendigheid van het stad binnen handbereik. Nieuwsgierig geworden? Maak dan snel een afspraak voor een bezichtiging en ervaar zelf de charme en het prachtige uitzicht van deze woning!

Begane grond

Entree met hal, toilet en trapopgang. Vanuit de hal toegang tot de keuken en woonkamer. Lichte keuken met met oven, koelkast, vaatwasser, inductiekookplaat en afzuiging. Ruime woonkamer met een prettige lichtinval en vrij uitzicht over de uiterwaarden van de Vecht. Aangrenzend bevindt zich een royale garage/berging en sfeervolle overkapping.

Eerste verdieping

Overloop met toegang tot vier slaapkamers en de badkamer. De badkamer is voorzien van een douche en wastafel. Eén van de slaapkamers biedt toegang tot het balkon.

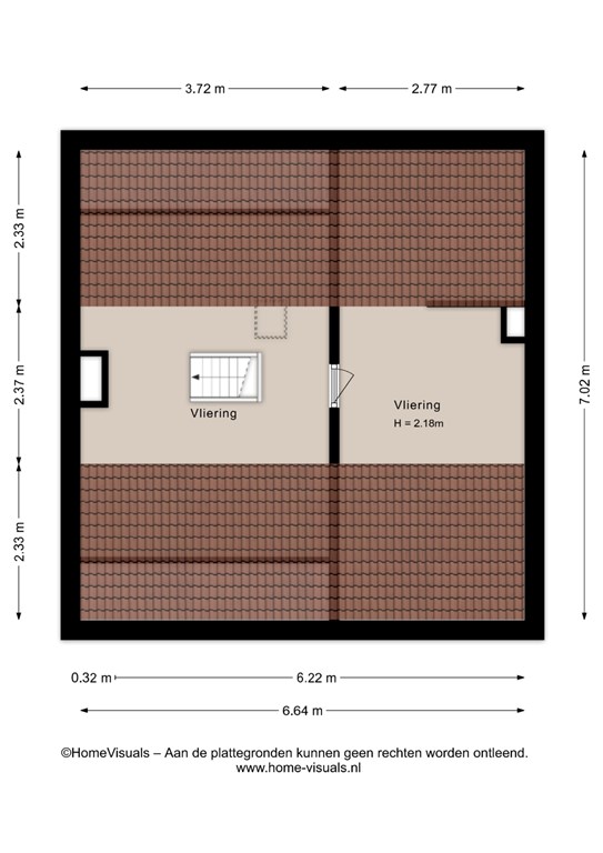
Tweede verdieping

Via vaste trap bereikbare vliering met bergruimte en mogelijkheden voor verdere indeling.

Bijzonderheden

- De woning biedt vanuit de woonkamer een schitterend vrij uitzicht over het Vechtdal. - Een plek waar u elke dag opnieuw kunt genieten van natuur en ruimte. Elk jaargetijde een ander schilderij. - Speel- en voetbalveld aan de overkant van de straat. Ideaal voor gezinnen. - Sfeervolle woning met karakteristieke details.

Lees meer
Lees minder

Kenmerken

Overdracht
Vraagprijs €435.000 k.k.
Status Beschikbaar
Aanvaarding In overleg
Bouw
Soort woonhuis Twee-onder-een-kap, Eengezinswoning
Soort bouw Bestaande bouw
Bouwjaar 1961
Soort dak Zadeldak bedekt met Pannen
18
Oppervlakten en inhoud
Gebruiksoppervlakten
Wonen 98 m²
Externe bergruimte
Perceel288 m²
Inhoud 449 m²
Indeling
Aantal kamers 5 kamers (4 slaapkamers)
Aantal badkamers 1 badkamer(s)
Aantal woonlagen 3 woonlagen
Voorzieningen Facility, Facility
Energie
Energielabel E
Isolatie Spouwmuur
Verwarming Centrale verwarming
Warm water CV ketel
Cv-ketel Nefit cv-installatie

Op zoek naar een makelaar?

Ruben Fokke Ad Fokke

contact

Vul het contactformulier in.

We nemen binnen een dag contact met je op.