Omschrijving Wentholtstraat 86
Netjes onderhouden hoekwoning, in een rustige straat met ruime oprit en veel garageruimte. Op een rustige en fijne plek in Ommen staat deze verzorgde hoekwoning met garage. Een nette, comfortabele woning op een toplocatie: je loopt in 10 minuten naar het gezellige centrum van Ommen, of je pakt de fiets en bent er binnen 5 minuten. Alles binnen handbereik! Nieuwsgierig geworden? Bel gerust voor een bezichtiging: 0529 - 451032. We laten je de woning graag zien!
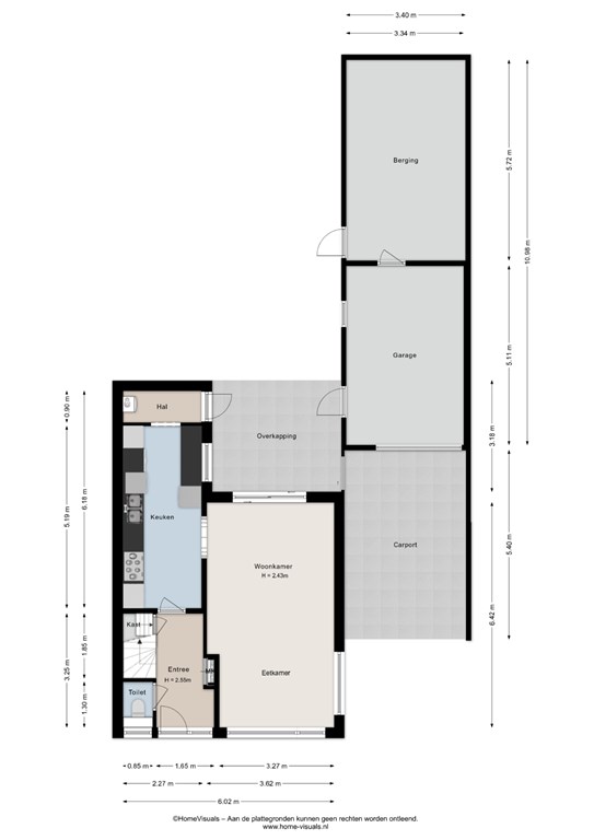
Begane grond
Entree met meterkast, toilet en trapopgang. De woonkamer met eetkamer bevindt zich aan de voorzijde en staat in verbinding met de keuken aan de achterzijde. Vanuit de keuken is een hal bereikbaar. Aangrenzend bevindt zich de overkapping met toegang tot de garage en berging.
Eerste verdieping
Overloop met toegang tot drie slaapkamers en de badkamer, voorzien van inloopdouche en een dubbele wastafel.
Bijzonderheden
- Remeha cv-installatie van 2023 (huur) - Keuken voorzien van gasfornuis met oven, koelkast, vaatwasser, combi-magnetron. - Slaapkamers met vaste kasten - Ruime garage en schuur - Ruime eigen oprit. Woonoppervlakte: 84m2 Perceeloppervlakte: 275m2 Inhoud: 296m3
0529 - 451 032